Светодиодные ленты активно используются многими людьми. С помощью них можно сделать: подсветку штор, подсветку зеркала и многое другое. Однако для качественно подсветки необходимо использовать специальные коробы для защиты, в которые устанавливается светодиодная лента. Они создают защиту и позволяют продлить срок службы. В этой статье мы поговорим про профиль для светодиодной ленты, рассмотрим размеры, виды и основные формы.
Материал профилей
Сейчас можно выделить два вида профилей по материалу:
- Поликарбонатные. Он достаточно гибкий и практичный.
- Пластиковый. Считается самым распространенным на территории нашей страны, так как его легко гнуть и устанавливать.
- Алюминиевый. Используя его можно создать эффективную защиту светодиодной ленты. Смотрите подробный видео обзор таких профилей.


Виды профилей для светодиодной ленты
Во время выбора основное внимание стоит уделять видам, так как они отвечают за рассеивание света по помещению. Также они играют ключевую роль во время установки.
- Угловые. Они подходят для установки в углах помещения.


- Встраиваемые. Профиля такого типа можно использовать для подсветки пола. Они устанавливаются непосредственно в стену или в пол, в средину помещается светодиодная лента. В некоторых ситуациях таких профиля можно использовать во время подсветки шкафа.


- Накладной. Монтаж такого профиля считается самым простым, однако во многих ситуациях внешний вид оставляет желать лучшего. Их оптимально устанавливать вовремя оформления арок или различных элементов интерьера на улице.


Форма профиля
Также есть и оригинальные профиля, которые достаточно сложно найти на нашей территории, это:
- Круглые. С помощью них можно создать необыкновенную подсветку в помещении.


- Подвесные. Такие профиля можно использовать для подсветки растений, их можно назвать достаточно универсальными, однако работать с ними не так просто, так как установка светодиодной ленты и правильный расчет освещения – это сложно.


- Герметичный профиль для подсветки бассейна.
Обращаем внимание! Сейчас существует множество форм и различных отличий, мы назвали только самые популярные профиля для LED ленты, которые используются на нашей территории и их можно найти в обычных магазинах.
Профиль для светодиодной ленты: основные размеры
Помните! Размер в каждом случае подбирается индивидуально, мы сделаем подборку основных, которые помогут вам сделать необыкновенную подсветку в своем доме.
Вот так выглядят самые популярные размеры коробов для лент:

Встраиваемые профиля получили размеры:

Следующим образом выглядят средние размеры круглых коробов:

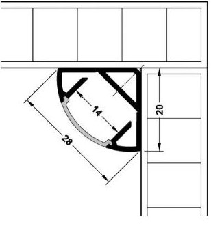
Угловые коробы имеют размеры:

Вот мы и рассмотрели основные виды, формы и размеры профилей для светодиодной ленты. Сложного ничего нет, но подбираете все индивидуально.