Подключение дома к электросети – это достаточно сложный этап. В этой статье вы найдете всю необходимую информацию, которая позволит вам выполнить правильное подключение дома к электросети.


На сегодняшний день подключение частного дома к электричеству может состоять из нескольких этапов. К основным этапам относятся:
- Выбор основных способов прокладки кабеля.
- Предварительное создание схемы.
- Проведение разметки.
- Основной процесс подключения.
- Получение разрешения на подключение.
В этой статье вы найдете подробную информацию и узнаете, как подключить дом к электросети.
Выбор электромонтажа
Перед началом выполнения всех работ вам обязательно необходимо будет определиться со способом монтажа проводки в частном доме. На данный момент проводка может быть скрытая или открытая. Открытая проводка в частном доме считается более редкой. Чаще всего она используется в деревянных домах. Этот вид монтажа предполагает в себе размещение проводов в специальных кабель каналах.








Вот основные преимущества открытой проводки в частном доме:
- При необходимости вы легко можете обнаружить поврежденный участок проводки.
- Подготовительные работы занимают меньше времени.
- При необходимости можно быстро добавить новую точку ответвления.
Кроме преимуществ этого способа существуют и недостатки, к которым можно отнести:
- Иногда кабель каналы могут плохо вписываться в интерьер дома.
- Открытый способ монтажа может подвергаться к механическим повреждениям.
Скрытая проводка считается более популярной. Этот вариант предполагает собою размещение проводов в специальных канавах.






Вот основные преимущества, которыми обладает этот вид прокладки:
- Вы не испортите интерьер комнаты, когда решите проложить проводку под гипсокартоном.
- Считается пожаробезопасной.
- Обладает меньшей вероятностью повреждений.
Кроме преимуществ вы также можете столкнуться и с недостатками:
- Сложность дальнейшего ремонта.
- Если проводка выйдет из строя вам достаточно сложно будет найти причину поломки.
- Электромонтажные работы занимают больше времени.
Правильное создание схемы
Для того чтобы провести правильное подключение электричества к дому вам необходимо будет составить схему. Перед созданием схемы вам необходимо будет предусмотреть размещение следующих элементов:
- Места ввода трассы в помещение.
- Автоматика.
- Потолочные светильники.
- Розетки и выключатели.
Подключение к электросетям все этапы предполагают в себе учет следующих требований:
- Провода по дому должны проходить вертикально или горизонтально. Поворот провода должен выполняться только под прямым углом.
- Провода должны располагаться на расстоянии в 20 см от потолка.
- От дверных проемов проводка должна располагаться на расстоянии в 10 см.
- Нельзя размещать розетки во влажных помещениях. Если помещение содержит высокое количество влаги, тогда необходимо использовать влагозащищенные розетки.
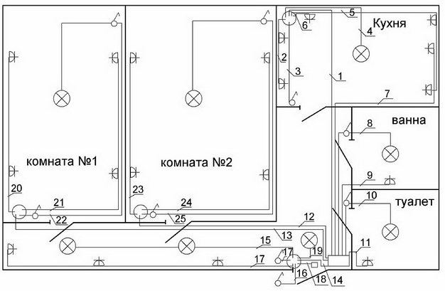
Сейчас вы сможете рассмотреть схемы монтажа проводки в доме. Здесь вашему вниманию мы представили 4 схемы, из которых вы можете выбрать одну.




Подключение дома к электросети может осуществляться с помощью одной из этих схем. Открытая проводка также может выполняться с помощью этих схем.
Предварительная разметка
Для правильного проведения разметки вам необходимо нанести на стену меловую разметку. Линии из мела будут представлять собою трассы прохождения проводов.


Для того чтобы быстро провести разметку вам необходимо использовать специальную нить, которая содержит в себе частицы мела. Для начала вам следует закрепить веревку, а потом оттянуть ее и бросить. После того как веревка коснется стены на ней останется ровная линия из мела. После проведения предварительной разметки свои стены вы можете сфотографировать.
Выбор составляющих элементов
Для того чтобы выполнить подключение электроснабжения частного дома вам необходимо использовать специальные устройства. При выборе всех материалов ни в коем случае не экономьте свои средства. Лучше всего используйте только качественные материалы. Они меньше подвергаются повреждениям и считаются качественными.








Вот это основные элементы, которые позволяют выполнить подключение дома к электросети. Вот преимущества представленных устройств:
- Распределительные коробки необходимо применять из негорючих материалов.
- Розетки лучше покупать открытого типа.
- Для прокладки проводов лучше использовать медный кабель. Он прослужит больше времени, чем продукт из алюминия.
- Сечение жилы проводов должны иметь не менее 2.5 мм.
Расчет необходимых материалов
При прокладке проводки лучше всего придерживаться принципа «семь раз отмерь, один раз отрежь». Вам необходимо правильно рассчитать длину всех проводов. Перед расчетом длины кабеля необходимо придерживаться следующих принципов:
- Для установочных коробок к кабелю необходимо добавить 5 см.
- Для крепления светильников необходимо добавлять 10 см.
- К длине каждого отрезка вам необходимо добавить 15 см.
Подключение дома к электросети
После того как вы закончили все подготовительные этапы вы можете приступать к подключению дома к электросети. Для выполнения всех работ вам могут потребоваться следующие инструменты:
- Небольшая болгарка с наличием алмазного диска.
- Перфоратор по бетону.
- Молоток и зубило.
- Шпатель и мастерок.
- Терка из пенопласта.
Для того чтобы вам проще было выполнить монтаж мы предоставили вашему вниманию пошаговую инструкцию.
Первый шаг






Сначала вам необходимо будет провести штробление стены с помощью болгарки. Глубина и ширина канавок должна быть не менее двух сантиметров. В тех местах, где вы планируете размещать розетки и выключатели, вам необходимо будет провести штробление с помощью перфоратора. На перфоратор вам следует надеть специальную насадку. Глубину штробления необходимо подбирать индивидуально.
Второй шаг


В круглые штробы вам необходимо разместить распределительные коробки. Для их крепления можно использовать специальные шурупы и дюбеля. После надежной фиксации можно переходить к следующему этапу.
Третий шаг


После того как канавка под провод будет готова вы можете приступать к закладке провода. Перед его закладкой канавки необходимо будет обработать грунтовкой. Для крепления своего провода вы можете использовать штукатурку.
Четвертый шаг


После того как ваша штукатурка застынет ее нужно обработать с помощью терки. Только после этого вы можете переходить к установке розеток. Это была вся инструкция, которая поможет выполнить подключение дома к электросети.
Как получить разрешение на подключение дома к электросети
После выполнения всех подготовительных работ вам необходимо обсудить свой вопрос с компанией, которая предоставляет электричество. Сначала вам необходимо будет пройти испытания. Если ваш результат окажется положительным, тогда вам выдадут разрешение на подключение дома к электросети.
Читайте: монтаж проводки в новостройке.