Все электромонтажные работы, которые проводятся в квартире, должны осуществляться на основе электромонтажных схем. Не только проводка, но и электрооборудование имеет свои схемы. Здесь мы предоставили вашему вниманию обозначение розетки на электрической схеме.


Обозначение розеток и выключателей должен знать каждый человек
Условные обозначения достаточно часто включают в себя изображения, которые общепонятны. Обозначение розеток позволяет значительно облегчить чтение любого чертежа.
Стандарты, которые определяют условное обозначение розеток
На сегодняшний день условные обозначения на схемах стандартизирует новый ГОСТ 21.614.88. Этот стандарт вышел совсем недавно и полностью заменил действующий ГОСТ. Теперь каждое обозначение розеток на схеме должно совпадать с этим документом. При нанесении на схему других приборов вам необходимо руководствоваться ГОСТом 2.721.74. В этом документе размещаются обозначения общего применения.


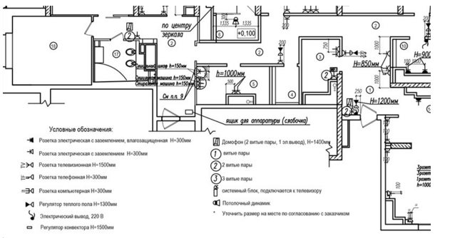
Как выглядит схема, где отображаются розетки и выключатели в доме
В том случае если вам необходимо прочитать схему о вводно-распределительных устройствах необходимо читать ГОСТ 2.721.74. Фаза и ноль в розетке также может иметь свои обозначения на схеме.
Обозначение розеток на схемах
Вот общее обозначение розеток, которое можно встретить на строительных чертежах:


Вот таким образом обозначается обыкновенная розетка
Электрически розетки на сегодняшний день являются одним из основных элементов электропроводки в доме. Вся продукция, которая выпускается производителями, может отличаться:
- По степени защиты.
- По способу установки.
- По количеству полюсов.
Помните! Именно по этой причине обозначение розеток на чертежах может быть разным.
Обозначение для наружной и открытой установки
На изображении ниже мы представили вашему вниманию розетки:
- Сдвоенные однополюсные с заземлением.
- Сдвоенные однополюсные без заземляющего контакта.
- Одинарные однополюсные с защитным контактом.
- Силовые трехполюсные с защитным контактом.


Обозначения сложных розеток на схемах
Обозначение розеток для скрытой и внутренней установки
На изображении ниже мы представили вашему вниманию следующие розетки:
- одиночные однополюсные с заземлением;
- сдвоенные однополюсные;
- силовые трехполюсные;
- одиночные однополюсные без защитного контакта.


Обозначения розеток для внутренней и скрытой установки на схеме
Условные обозначения влагозащищенных устройств
Обозначение на чертежах розеток влагозащищенных может быть следующим:


В ванной комнате следует использовать розетки с влагозащитой
- Одинарные однополюсные устройства.
- Одинарные однополюсные устройства с заземлением.
Условные обозначения блока розеток и выключателя
На картинке ниже мы представили вашему вниманию:
Одноклавишный выключатель и розетку.


Обозначение розетки и выключателя (пары)
Обозначения выключателей на схемах
Все выключатели на схемах отображаются следующим образом:


У выключателей обозначение простое, но его следует запомнить
Обозначения одноклавишных и двухклавишных выключателей
На изображении вы сможете увидеть следующие выключатели:


Однополюсные двухклавишные и одноклавишные выключатели получили достаточно сложное обозначение
- внешние;
- накладные;
- встраиваемые;
- внутренние.
Вот общепринятая таблица, которая содержит в себе условные обозначения розеток, выключателей и переключателей. Здесь представлены все виды розеток, которые вы можете встретить.


На сегодняшний день выпуск этих устройств достаточно разнообразен. Именно поэтому новые устройства появляются, намного быстрее, чем их обозначения. Если в этом изображении вы найдете неизвестные значки, тогда просто посмотрите сноски.
Видео по теме
Также рекомендуем посмотреть несколько видео, которые откроют для вас полное понимание того, как выглядит обозначение розеток и выключателей на схемах, используемых во время электромонтажа любой сложности.
Посмотрев этот ролик, вы поймете, как читать обозначения розеток и выключателей:
В этом видео подробно рассказывают, как нарисовать розетки и выключатели на электрических схемах.
Рекомендуем прочесть: как правильно подключить розетку.