Молния считается одним из самых страшных природных явлений. В дом она попадает не так уж и часто, но если такое произойдет, последствия будут ужасные. Хорошо, если ваш дом находится недалеко от башни с молниеотводом или же от линии электропередач, в этом случае удар должны применять именно они. Молниеотвод отлично справиться с этой задачей.

Однако далеко не все дома находятся возле таких сооружений. Во время грозы довольно опасным местом становиться жилой дом или другая хозяйственная постройка. Причина, почему молния выбирает именно дом, проста – в нем много металлических элементов. Молниеотвод легко решит эту проблему. Если вы владеете квартирой, можете не переживать, многоэтажные дома строились изначально с молниеотводом.
Молниеотвод – это обязательный элемент для защиты дома. Вопрос стоит другой: как же это сделать? Можно обратиться к профессионалам, но они берут огромные деньги за свою работу. Или же пробовать делать все самостоятельно.
Виды и конструкция молниеотводов
Молниеотвод состоит из следующих элементов:
- Заземлитель;
- Токоотвод;
- Приемник молнии.
Самыми распространенными считается: стержневая, и тросовая молниезащита.

Стержневые молниеотводы представляют собой, простую конструкцию на основе штыря из цельного метала, который равняется 15-20 мм в диаметре. Проводом в этом случае играет металлическая арматура, она отводит весь электрический заряд, ее диаметр должен составлять 6 мм. Между собой все элементы необходимо соединять с помощью сварки. Установка устройства молниезащиты не должна соприкасаться с домом, крепиться она на специальной станине возле самого здания или дома. Безопасность в этом случае будет зависеть только от размера самого штыря, чем он выше, тем больше радиус он охватит.
По похожему принципу монтируется молниезащита дома из сэндвич панелей. В этом случае только берется определенный расчет под тип каждого здания.
Молниеприемник


Молниеприемник считается верхней частью любой защитной конструкции, неважно это стержневая молниезащита или тросовая молниезащита. Если рассматривать их по отдельности, то в стержневой окончание всегда заостряется, на него всегда приходиться основной удар молнии. Лучшим металлом для молниеприемника выступает медь. Приемник всегда нужно вешать как можно выше, но стоит и помнить миру, ведь если он будет висеть слишком высоко, начнет привлекать все молнии во время сильной грозы.
Стержневой молниеотвод выглядит так:


Линейный молниеотвод устанавливается таким образом:


Токоотвод
Схема соединения токоотвода


Любой молниеотвод должен содержать в себе токоприемник. Из себя он представляет толстый провод из алюминия или меди. Крепится к специальным муфтам установленных к самому молниеприемнику и заземлению. Чтобы провести его по стене молниезащита дома из сэндвич панелей используется пластиковые крепежи. Сам токоотвод обязательно нужно заизолировать от воздействия всей окружающей среды, это можно сделать, прибегая к обычному каналу из разнообразных кабелей.
Как выглядит токоотвод


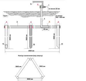
Заземление молниеотвода
Основная часть этого элемента должна находиться под землей. Из себя заземлитель представляет несколько стержней, который соединяются между собой с помощью сварки или других крепежных материалов, способные проводить мощный электрический ток.
Как сделать молниезащиту металлической крыши.
Схема заземления


Перед тем, как сделать молниеотвод, добивайтесь эффективного функционирования всего устройства. Для установки системы молниезащиты используйте только качественные и проверенны материалы, не поддающиеся коррозии. Заземлить раз в год нужно проверять на целостность, в случае повреждения заменяем все деформированные элементы. И помните, все стержни соединяются между собой электропроводящими материалами на холодной сварке, можно использовать и обжимные гильзы.
Материалы и инструменты для монтажа системы молниеотвода
Для изготовления громоотвода вам понадобятся следующие инструменты:
- Медная проволока;
- Стержни;
- Хомуты;
- Алюминиевый провод;
- Дрель;
- Муфты;
- Трубы;
- Сварочный аппарат;
- Металлические уголки;
- Крепежные элементы.
Процесс монтажа молниеотвода
Расскажем о более сложном типе молниеотвода – тросового.
- Натягиваем проволоку в 6 миллиметров;
- Проволоку крепим на металлические штыри, которые должны быть заранее приготовлены и находиться в вертикальном положении на брусках;
- Обматываем дымовую трубу проволокой и присоединяем к горизонтальному элементу;
- Проводим токоотвод и соединяем его с заземлением;
- Устанавливаем заземлитель, как его правильно установить читайте далее в статье.
Установка стержневого молниеотвода выглядит немного иначе:

- Устанавливаем жерди на земле или кровле, высоту определяем в зависимости от самого здания. Перед установкой все элементы молниеотвода соединяем между собой, убеждаемся в их целостности и в отсутствии пыли и ржавчины на них. После соединения всей конструкции оборачиваем все места изгибов изоляционной лентой;
- Если крыша дома изготовлена из легко возгораемых элементов, заранее беспокоимся о монтаже молниезащиты на 15 сантиметров от крыши;
- После всей установки замеряем сопротивление стержневого молниеотвода с помощью омметра, показатель не должен превысить 10 ОМ.
Чтобы более подробно узнать весь процесс сборки, просмотрите следующие видео
Место для заземления молниеотвода


К этому подходим с собой аккуратностью. Заземлитель не устанавливается в месте, где могут быть дети и животные. Не следует устанавливать возле тропинок и скамеек.
Лучшим местом, где заземлитель будет нормально функционировать, считается влажная почва. Время от времени ее можно полевать водой – это поможет сохранить работоспособность устройства.
Если вы не хотите постоянно полевать землю и беспокоится о его нормальной работе, можете во время установки использовать шахтный уголь и соль. Их просто засыпаем в почву и устанавливаем всю систему заземления.
Обслуживание молниеотвода
Чтобы в самый нужный момент молниеотвод сработал на все 100%, необходимо постоянно следить за его состоянием. К примеру, стержневой тип молниеотвода нуждается в очистке металлического штыря и станины. Чистить их можно с помощью специальных средств. При желании их можно покрасить краской.
На самом деле, создание молниеотвода – это работа, которая под силу каждому человеку. Но, помните, работать только в сухие и ясные дни.
Чтобы совершать правильное обслуживание не забывайте когда проводится проверка молниезащиты.
Видео о том, как монтировать систему молниеотвода от А до Я
Рекомендуем почитать молниезащита скатной кровли.