Розетки на кухне должны соответствовать определенным требованиям, так как они находятся в зоне действия огня и воды. Розетки в столешницу нужно выбирать класса IP44. Выдвижные розеточные блоки можно встраивать как на рабочей поверхности стола, так и в кухонные шкафчики.
Расположение розеток на кухне
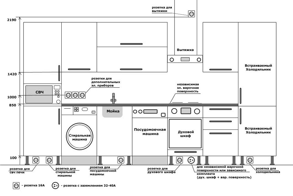
Размещать розеточные блоки на кухне следует так, чтобы все электроприборы оказались в 3 уровнях:
- нижний,
- средний,
- верхний.


Примерная схема размещения
К нижнему уровню относятся приборы, которые могут быть встроены в нижние шкафы:
- жарочная плита,
- стиральная машина,
- духовой шкаф,
- посудомоечная машина.
Техника среднего уровня это:
- электрический чайник,
- кофеварка,
- кухонный комбайн,
- электрический тостер,
- блендер,
- микроволновая печь,
- другие приборы, которые устанавливаются на столешницу.
К технике верхнего уровня относятся приборы, находящиеся выше кухонного стола,
- вытяжные системы,
- подсветка,
- кондиционер.
Для приборов нижнего уровня розетки устанавливают от пола на расстоянии 10-15 см. Для стиральной и посудомоечной машины, для холодильника розетки нужны с заземлением.


Приборы верхнего уровня включаются в розетки, установленные в 10 см выше шкафов.
Встроенные в столешницу выдвижные блоки розеток имеют ряд достоинств перед обычными точками включения приборов. К их плюсам можно отнести:
- экономия времени и места,
- безопасность,
- функциональность,
- эстетичность.


Выбор и установка встраиваемых розеток
Выбор приборов для подключения потребителей электричества это дело, которое требует внимания. Перед приобретением изделия нужно его внимательно осмотреть. На нем не может быть никаких механических повреждений. Выдвижная розетка может поворачиваться в столешнице в любую сторону. Цвет изделия можно выбрать по своему вкусу. Существуют модели с разноцветной подсветкой.
Перед самостоятельной установкой прибора необходимо отключить электричество в щитке. В столешнице размечается отверстие и выпиливается с помощью лобзика. Затем изделие вставляется в отверстие и закрепляется в нем. Очень высокое качество имеют изделия фирмы Legrand из Франции.
Они имеют защиту от влаги и пыли, ударопрочны. Крышка блока подпружинена, она способна открываться на угол в 180º. Изделие имеет светодиодную подсветку. Встроить такой блок это освободить себя навсегда от путающихся под ногами проводов.
Преимуществ у этих изделий много. Но есть и недостатки:
- они совершенно не подходят для того, чтобы подключать к ним стационарную технику,
- вертикальные выдвижные устройства для столешниц быстро расшатываются,
- горизонтальные блоки неудобны для подключения боковых вилок.
При подключении холодильника или духовки блок будет оставаться открытым. Вертикальные блоки нужно придерживать рукой при включении и выключении приборов. А еще лучше встроенная горизонтальная панель. Но и она создает некоторые неудобства для агрегатов с боковыми вилками. Их шнур упирается в крышку или в столешницу.
Производители с мировым именем
Российский рынок предлагает изделия следующих производителей:
- Schulte Elektrotechnik,
- Kondator,
- Simon.


Встраиваемые розетки в столешницу от Kondator
Немецкая компания с мировым именем выпускает розетки «Эволайн» с 1964 года. Их отличает стильный дизайн и отличное качество. Предлагаются конструкции вертикальные, горизонтальные и открытые.
Kondator компания из Швейцарии. Она производит встраиваемые розетки PowerDot и скрытые блоки SmartLine. В них можно включать устройства USB, HDMI и интернет.
Итальянская компания Simon выпускает розетки для офисов. Они тоже выполняют некоторые дополнительные функции. Подобные изделия производят десятки предприятий, менее известных покупателю. Китайские изделия примерно через полгода удивляют владельцев своим нравом. Они сами открываются и закрываются, застревают в гнездах. Поэтому проверять их нужно внимательно.
Заключение по теме
Установить встраиваемые розетки в стену, в шкаф, в столешницу способен каждый домашний мастер.
Главное все делать не спеша, внимательно. Отверстие в столешнице можно проделать специальными сверлами или выпилить лобзиком. Нужно только не забывать о том, что нельзя ставить розетки поблизости от крана с водой. Сама столешница может быть выполнена из ДСП, акрила, стекла, из других материалов.